Производитель
Вся Кровля
Есть в наличии
404 р
Доставка послезавтра и позже, от 1500 ₽
Самовывоз сегодня, бесплатно (уточняйте)
Самовывоз сегодня, бесплатно (уточняйте)
Бренд
Вся КровляМаксимальная длина, м
7Бренд
Вся КровляМаксимальная длина, м
7Покрытие
MATТекстура поверхности
МатоваяТолщина
0.5Толщина покрытия, мкм
35Цвет товара
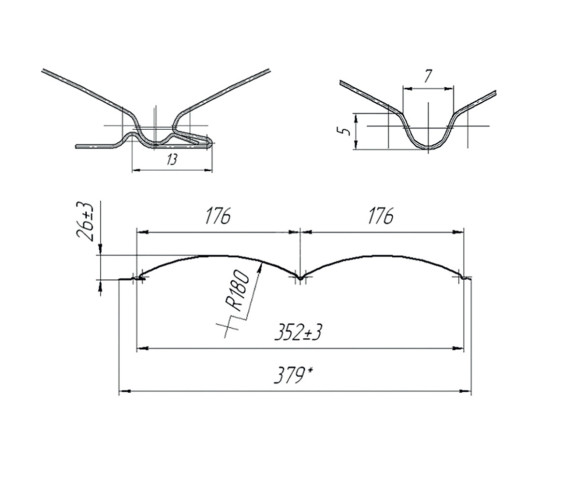
RAL 5005Ширина общая, мм
379Ширина полезная, мм
352Габариты и вес
Отзывов: 0
Нет отзывов о данном товаре.
Вопросов: 0
Пока нет вопросов об этом товаре. Станьте первым!
Похожие товары
